Onze doordachte interieuradviezen integreren uw wensen met bouwkundige ruimtelijke voorwaarden en praktische functionaliteit, met oog voor esthetiek. De bouwsteen van uw interieur is een sterke bouwkundige basis. Door bouwkundige elementen naadloos te integreren, zorgen we ervoor dat uw interieur niet alleen mooi en functioneel is, maar ook solide en duurzaam.
Onze bouwkundige achtergrond biedt een unieke meerwaarde. Bij renovaties en verbouwingen moeten vaak bestaande structurele elementen en beperkingen in acht worden genomen. Onze methode stelt ons in staat deze uitdagingen effectief aan te pakken, resulterend in een interieurontwerp dat visueel aantrekkelijk is en goed aansluit op de bestaande architectuur en functionele behoeften. Zo waarborgen we zowel de esthetische kwaliteit als de structurele integriteit van uw interieur.
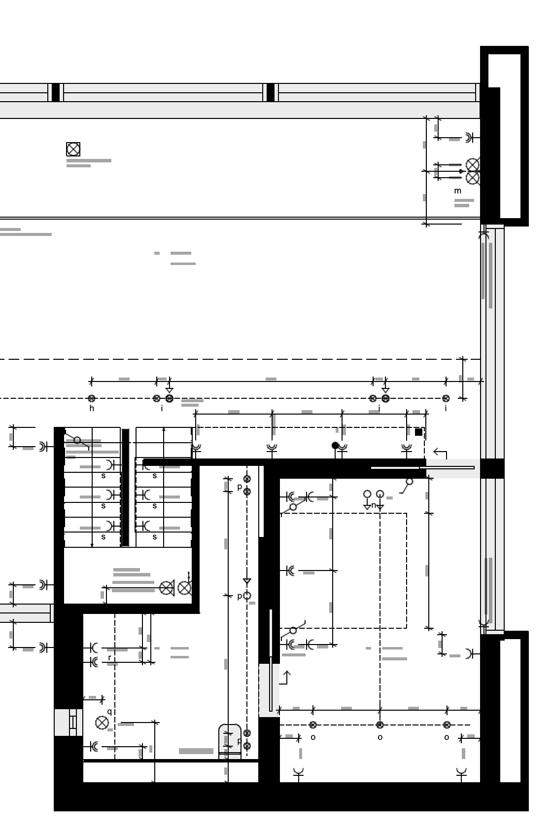
Hoewel bouwkundige tekeningen en interieurontwerpen vaak als afzonderlijke onderdelen worden gezien, zijn ze in de praktijk onlosmakelijk met elkaar verbonden. Het interieurontwerp is immers een integraal onderdeel van het bouwkundige proces, dat onder andere het opstellen van elektra- en lichtplannen omvat. Deze technische informatie dient al vóór de start van de bouw beschikbaar te zijn.
Al onze aanvragen richten zich op ruimtelijk ontwerp, waarbij wij interieuradvies en bouwkundige ondersteuning bieden. Dit betekent dat wij betrokken zijn vanaf het moment dat er bouwplannen worden gemaakt en werken vanuit de bouwkundige tekeningen.
Bij Buro Cella verzorgen wij zowel de technische uitvoering als het interieurontwerp van het project. Denk hierbij aan een licht- en elektraplan dat volledig is afgestemd op de inrichting van de woning, essentieel voor een vlekkeloze uitvoering door de aannemer.
Bij verbouwingen denken we actief mee over de herindeling van de ruimte. We werken nauwkeurige vormtekeningen uit van de bestaande, te slopen en nieuwe situatie, zodat voor de aannemer precies duidelijk is wat er moet gebeuren. Deze tekeningen kunnen bovendien als basis dienen voor het aanvragen van offertes.
Blijkt dat er een vergunning nodig is, bijvoorbeeld bij een woninguitbreiding? Dan verzorgen wij de benodigde bouwkundige tekeningen, uiteraard conform de geldende regelgeving.
Wij geloven sterk in de kracht van eenvoud, maar toch verbluffende en harmonieuze ruimtelijke ontwerpen. Het is een plek waar kwaliteit en functionaliteit samenkomen om uw dagelijks leven te verbeteren. Door slimme en bewuste keuzes te maken in indeling, materiaal, kleur, verlichting en meubilair streven we ernaar om uw gezondheid en welzijn te bevorderen met goed doordachte ontwerpen.
Warme en natuurlijke materialen spelen een essentiële rol in onze ontwerpen, omdat ze niet alleen een uitnodigende sfeer creëren, maar ook een gevoel van comfort bevorderen. Onze liefde voor designklassiekers komt tot uiting in elk aspect van ons werk. Deze iconische stukken voegen niet alleen esthetische waarde toe aan uw ruimte, maar vertellen ook een verhaal van tijdloze schoonheid en vakmanschap.
Totaalinterieurs bevatten de volgende onderdelen:
– intake gesprek
– concept
– moodboard
– indelingsplattegrond 2D/3D
– kleur- en materiaalplan
– indelingsplattegrond vaste inrichting
– lichtplan
– suggestie armaturen
– vloerplan
– suggestie vloerafwerking
– suggestie raambekleding
– ontwerp maatwerk
– technische tekeningen maatwerk
– offerte aanvraag
– projectbegeleiding
– suggestie meubilair (optioneel)
Wij bieden totaalinterieurs aan, maar het is ook mogelijk om losse diensten te kiezen die aansluiten bij uw behoeften. Daarnaast bieden wij interieuradviesgesprekken aan op afspraak bij ons in de ontwerpstudio.
Voor alles is een oplossing. Op basis van uw wensen en onze expertise ontwerpen we interieurmaatwerk waarbij het meubel naadloos in de ruimte past. We kijken daarbij zorgvuldig naar de toepassing, het gebruik, materiaal, vorm, kleuren en texturen om het ontwerp optimaal af te stemmen. Onze maatwerkoplossingen sluiten naadloos aan op uw wensen en het ruimtelijke ontwerp. Met ons vaste team van specialisten begeleiden wij het project van begin tot eind.
De mogelijkheden zijn:
– Meubelontwerp
Denk aan op maat gemaakte meubels, zoals een tv-meubel, haardmeubel, roomdivider of kastenwand. We beginnen met het bepalen van de juiste verhoudingen en de verdeling van open en gesloten delen, zodat het meubel visueel in balans is. Daarna richten we ons op de afwerking van het materiaal, zodat het meubel naadloos opgaat in de ruimte waarin het wordt geplaatst. Elk meubel wordt ontworpen met oog voor detail.
– Keukenontwerp
Bij een keukenontwerp combineren we functionaliteit met esthetiek. We beginnen met het opstellen van een plan voor de indeling en zorgen ervoor dat elke ruimte optimaal wordt benut. We creëren op maat gemaakte keukenkasten en werkbladen die passen bij de ruimte en uw behoeften. Daarnaast verzorgen we een licht- en elektraplan dat de sfeer en functionaliteit van de keuken versterkt.
– Badkamerontwerp
Bij het ontwerpen van een badkamer zorgen wij voor een complete aanpak. Dit omvat de afwerking van vloer, wand en plafond, zoals stucwerk in combinatie met tegelwerk. We stellen een sanitairplan op, ontwerpen op maat gemaakte meubels en, indien van toepassing, verzorgen we een licht- en elektraplan.
Gedempte Zuiderdiep 141
9711 HE Groningen
Nederland
Iris Siepel
+31 652400806
iris@burocella.com
KVK 90052994
Onze ontwerpstudio is van maandag t/m vrijdag op afspraak geopend. Plan hier uw telefonische afspraak in om te kijken of Buro Cella de juiste partij is om uw plannen uit te werken.
Archicad
Op al onze opdrachten is ‘De nieuwe Regeling 2025: Rechtsverhouding opdrachtgever-architect, ingenieur en adviseur DNR 2025 van toepassing.