Vorige slide
Volgende slide

Bij Buro Cella draait alles om het creëren van ruimtes die levens verrijken. Onze aanpak is geïnspireerd op een ‘cella’, een ruimte voor een godenbeeld in een tempel, waar rust, inspiratie en betekenis samenkomen in een doordacht interieurontwerp met bouwkundige ondersteuning.

Onze specialisatie
Buro Cella onderscheidt zich met haar specialisatie in Bouwkundig Ondersteunend Interieurontwerp. Wij gaan verder dan enkel het aankleden van ruimtes; door het inventariseren van wensen en analyseren van ruimtelijke voorwaarden creëren wij doordachte interieuradviezen. Met oog voor ruimtelijke verhoudingen, functionaliteit en esthetiek, ontwerpen wij ruimtes die zowel praktisch als visueel vernieuwend en harmonieus zijn. Daarnaast nemen wij het voortouw in het omzetten van ontwerptekeningen naar bouwkundige tekeningen, die dienen als fundament voor de engineering en het aanvragen van benodigde vergunningen.

Uitvoering
Met onze leidende rol aan het begin van elk project en onze bouwkundige expertise zetten wij uw ideeën om in werkelijkheid. Samen met ons team van bedrijven en merken streven wij naar projecten waarin elk detail zorgvuldig is overwogen en uitgewerkt. 

Buro cella

Buro Cella is een ontwerpbureau gespecialiseerd in interieurontwerp met een bouwkundige basis. Wij bieden zowel particuliere als zakelijke klanten ruimtelijke inzichten en doordachte oplossingen in zowel tweedimensionale (2D) en driedimensionale (3D) contexten.

Bouwkundig ondersteund interieurontwerp
Wij ondersteunen architecten en hun opdrachtgevers bij het creëren van interieurs die naadloos aansluiten op de architectuur, tijdloos, toekomstgericht en met oog voor sfeer en context.

Jouw project is afgerond. Wat nu?
Als architect heb je met zorg een ontwerp gerealiseerd. Maar bij het interieur gaat het vaak mis: veel interieurontwerpers voegen een eigen ‘sausje’ toe, waardoor het interieur los komt te staan van de architectuur.

Buro Cella doet het anders
Wij ontwerpen interieurs die voortkomen uit de architectuur, in harmonie zijn met de omgeving en afgestemd op de sfeer, als natuurlijk verlengstuk van jouw ontwerp.

Onze interieurs zijn succesvol omdat we bouwkundig durven te denken binnen de mogelijkheden.

Bouwkundig Ondersteunend Interieurontwerp

De bouwsteen van uw interieur

Een succesvol interieurontwerp begint met een sterke bouwkundige basis. Door vanaf het begin bouwkundige elementen naadloos te integreren, creëren we een duurzame fundering voor uw interieur. Deze benadering zorgt ervoor dat de ruimtelijke verhoudingen kloppen.

Onze aanpak begint met het analyseren van de bouwkundige aspecten, zodat vloeren, wanden, plafonds en draagconstructies op een zorgvuldige manier worden verwerkt. Dit zorgt ervoor dat deze elementen voldoen aan technische eisen en passen bij de ruimtelijke verhoudingen en uitstraling van de ruimte.

Na deze basis te hebben gelegd, zetten we onze expertise in om een totaalinterieur te ontwerpen. We selecteren met zorg materialen en kleuren die samen een harmonieuze en functionele ruimte vormen.

Wij zorgen ervoor dat elk detail zorgvuldig wordt uitgewerkt en combineren een sterke bouwkundige basis met creatief ontwerp om een ruimte te creëren die niet alleen duurzaam en aangenaam is, maar ook het welzijn van de gebruiker bevordert.

"Ideeën bestaan vaak al, maar het is pas wanneer de eerste lijnen op papier worden gezet dat ze echt tot leven komen. Het vermogen om het eindresultaat voor ogen te zien, is van onschatbare waarde voor onze klanten."

Buro cella
Beeldmerk

Interieuradvies

Bij Buro Cella bieden we de mogelijkheid tot het realiseren van totaalinterieurs met bouwkundige ondersteuning, maar ook losse diensten zijn beschikbaar. Daarnaast bieden we persoonlijke interieuradviesgesprekken in onze ontwerpstudio. Tijdens dit gesprek kunt u al uw vragen stellen terwijl wij u begeleiden bij het maken van de juiste ruimtelijke en basiskeuzes.

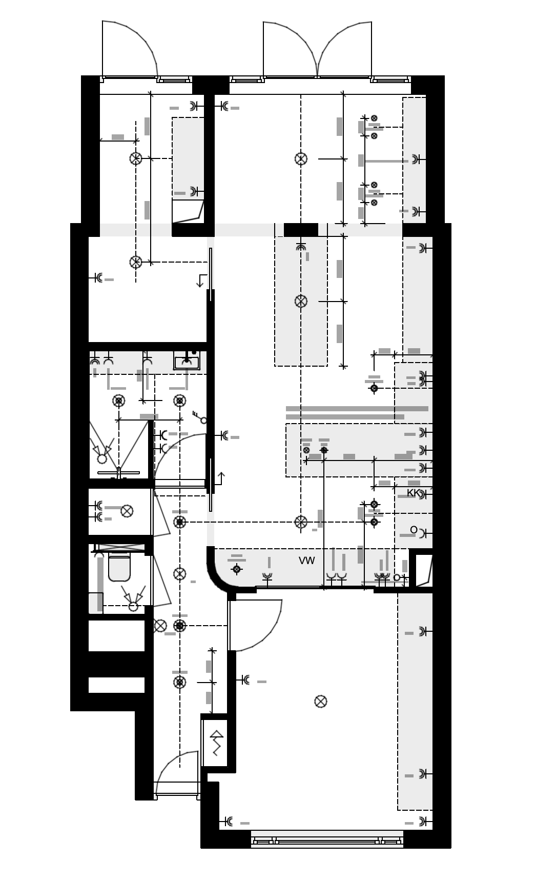
technische uitwerkingen

Onze aanvragen richten zich op interieurontwerp met bouwkundige ondersteuning. Wanneer voor een nieuw indelingsplan een vergunning nodig is, zoals bij een woninguitbreiding (bijvoorbeeld een uitbouw), dragen wij hier zorg voor. Daarnaast is het opstellen van technische tekeningen, zoals een lichtplan en elektraplan, essentieel voor de uitvoering van een interieurontwerp. Deze technische informatie moet vóór de start van de bouw beschikbaar zijn.

Interieurmaatwerk

Onze maatwerkoplossingen sluiten naadloos aan op uw wensen en het ruimtelijke ontwerp. Of het nu gaat om op maat gemaakte meubels, garderobes, tv-meubels, keukens of badkamerontwerpen, wij zorgen ervoor dat elk ontwerp volledig is afgestemd. Met ons vaste team van specialisten begeleiden wij uw project van begin tot eind.